Bureau d’études construction maison Habitat Libre

Un bureau d’études construction maison sur place pour des plans personnalisés.
Vous pouvez sélectionner une de nos idées de projet que nous retravaillerons ensemble selon vos besoins, vos envies et votre budget avec notre bureau d’études construction maison.
Ou vous nous apporter votre idée et nous vous accompagnerons dans sa réalisation.
Une fois votre projet défini et que vous avez choisi votre terrain, le financement finalisé, le travaille de notre bureau d’études peut commencer.
Nous étudions et créons ensemble votre projet en optimisant sa meilleure implantation sur votre terrain .

- Son exposition
- Sa superficie
- Ses cotes
- Son relief
Notre métier c’est de construire du sur mesure !
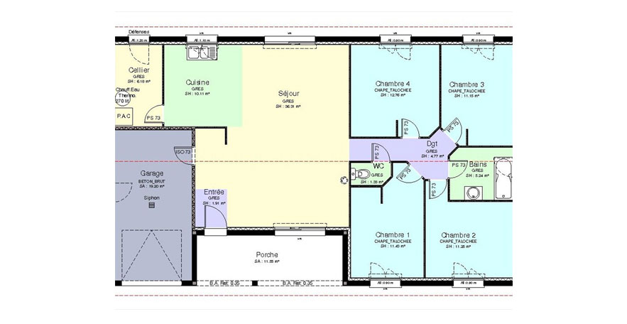
VOICI QUELQUES RÉALISATIONS DE PLANS
Vous avez un projet ?
Nous vous apportons les solutions !

BUREAU D'ÉTUDES
Un bureau d'études sur place pour des plans personnalisés
BUREAU D'ÉTUDES
ACCOMPAGNEMENT
Recherche foncière et financière pour plus de sérénité
ACCOMPAGNEMENT
SHOWROOM
Un showroom de 500m2 pour le choix de vos matériaux
SHOWROOM
GARANTIES
Toutes les garanties d'un contrat de construction pour plus de sécurité
GARANTIES
